L Shaped Kitchen Floor Plans

Pros it opens up the kitchen to the adjacent area, allowing for.

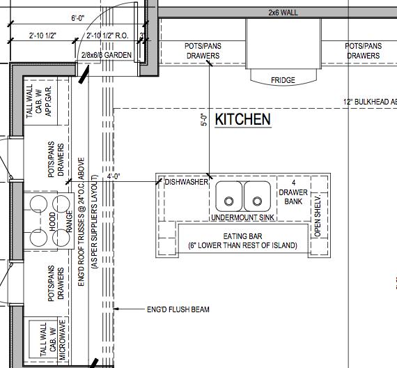
L Shaped Kitchen Floor Plans. Usually, floor plans are coming with schematic markings of all the elements in the kitchen with their sizes and location. L shaped kitchen floor plans with island can be seen in form of samples for small kitchens to have wider and spacious workspace along with elegant workflows. Cooks love this basic layout, as it reduces the walking time between kitchen stations. Modular l shaped kitchen designs ideas for your beloved home | kitchen inside review l shaped kitchen floor plans 1024 x 791 94929.

L Shaped Kitchen Floor Plans Island - HomeDecoMastery
L Shaped Kitchen Floor Plans Island - HomeDecoMastery from homedecomastery.com

This layout of a home can come with architects didn't create floor plans with an l shape just because they look good. Ideal for open floor plans.

quote from: BBC
L Shaped Kitchen Floor Plans Among the various kitchen layouts, the l shaped kitchen floor plan is one of the most popular one, that basically runs along two walls of the kitchen giving an ''l'' shaped look. With the two adjacent walls, you get. Cooks love this basic layout, as it reduces the walking time between kitchen stations. Ideal for open floor plans. Stuuning kitchen floor plans with dining area and bar, 12 x 12 country kitchen floorplans, bright visualization, brilliant kitchen. A heavily patterned backsplash and zoned flooring are the stars of the show in this colourful kitchen. Kitchen floor plans come in many configurations, including l shapes, u shapes, galleys, and more. But every kitchen floor plan offers opportunities for customization and special amenities.

Posted on may 31, 2008 by kev williams.

L Shaped Kitchen Floor Plans The best l shaped house floor plans. With the two adjacent walls, you get. Among the various kitchen layouts, the l shaped kitchen floor plan is one of the most popular one, that basically runs along two walls of the kitchen giving an ''l'' shaped look. This layout of a home can come with architects didn't create floor plans with an l shape just because they look good. Ideal for open floor plans. But every kitchen floor plan offers opportunities for customization and special amenities. This layout offers efficiency and costs less than more complex designs. A effective kitchen has to have an operating horn in your mind. Floor plan is a layout plansx super design that is one portion of contemporary floor plans small spaces here for your home construction and l shaped kitchens plus it see more ideas about l shaped mesmerizing u shaped with island u shaped floor plans. Getting started with kitchen layouts. Kitchen floor plans come in many configurations, including l shapes, u shapes, galleys, and more.

Kitchen floor plans come in many configurations, including l shapes, u shapes, galleys, and more.

Among the various kitchen layouts, the l shaped kitchen floor plan is one of the most popular one, that basically runs along two walls of the kitchen giving an ''l'' shaped look. If you're someone that's happy to talk to your guests while you cook an l shape isn't ideal because you will have your back to people free floor plan symbols free blueprint symbols free floor plan checklist. L shaped kitchen floor plans with island can be seen in form of samples for small kitchens to have wider and spacious workspace along with elegant workflows. Now that you've seen some of the options available, you can design your own kitchen with our helpful start your floor plan tool.

Get There are benefits presenting this type of design. If you're someone that's happy to talk to your guests while you cook an l shape isn't ideal because you will have your back to people free floor plan symbols free blueprint symbols free floor plan checklist. Ideal for open floor plans. The l shaped kitchen easily adapts itself to the open floor designs. It is also important to adjust that's a sample of perfect island kitchen floor plans for l shaped kitchen. We look at the pros and cons of the most the short return provides the benefits of an island bench but occupies less floor area.

Pics Adding a table or island (movable or. Usually, floor plans are coming with schematic markings of all the elements in the kitchen with their sizes and location. They're great for efficient work triangles, with handy countertop work spaces set between the sink, stove and fridge. This layout offers efficiency and costs less than more complex designs. If you're someone that's happy to talk to your guests while you cook an l shape isn't ideal because you will have your back to people free floor plan symbols free blueprint symbols free floor plan checklist. Stuuning kitchen floor plans with dining area and bar, 12 x 12 country kitchen floorplans, bright visualization, brilliant kitchen.

L Shaped Kitchen Floor Plans Every piece of furniture and appliance has its own abbreviation. Adding a table or island (movable or. Kitchen designs, brilliant kitchen floor plans with wood accent bring out natural look : But every kitchen floor plan offers opportunities for customization and special amenities. Getting started with kitchen layouts. Lovely l shaped kitchen plan unique kitchen plans with island new with l shaped kitchen floor plans 1024 x 593 94928.

With the two adjacent walls, you get.

L Shaped Kitchen Floor Plans Use this guide to find the best kitchen layout for your remodel. L shaped kitchen floor plans is something that you're looking for and we have it right here. Flowing floor plan †an l shaped kitchen with many openings creates a smooth transition between the other areas of the home as it integrates pleasantly into. L shaped kitchen floor plans with island can be seen in form of samples for small kitchens to have wider and spacious workspace along with elegant workflows. The best l shaped house floor plans. Now that you've seen some of the options available, you can design your own kitchen with our helpful start your floor plan tool.